Finestre è un investimento che deve durare nel tempo!
Resistenza e tecnologia
Uniamo soluzioni innovative ecologiche con la massima qualità per realizzare le aspettative di tutti i Clienti – anche quelli piu esigenti.
Linee di prodotti in alluminio
Funzionalità e design moderno
PROCURAL PE68 a taglio termico è un prodotto dedicato ai clienti, che cercano gli infissi in alluminio di elevata qualità al pezzo contenuto. È un ottima soluzione, quando il tuo cliente ha bisogno di un infisso innanzitutto duraturo ma non necessariamente ad altissime prestazioni. Il sistema PROCURAL PE68 si basa su una tecnologia a 3 camere, ha una profondità del telaio pari a 68 mm e una guarnizione in gomma bicomponente EPDM lungo tutto il perimetro. La robustezza dei profili garantisce stabilità, sicurezza e una durata nel tempo. In versione HI con la chiusura a camera sotto il vetro e un innovativo inserto isolante è possibile aumentare i parametri di isolamento termico ed efficienza energetica.
Efficienza energetica e durata nel tempo
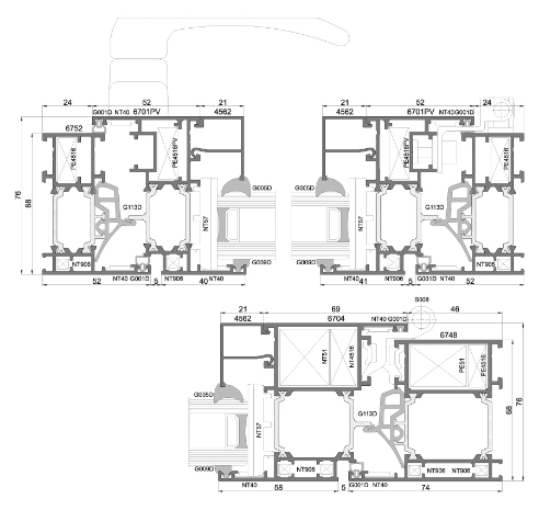
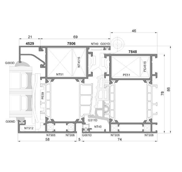
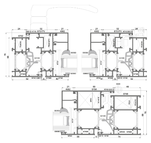
PROCURAL PE78N è un prodotto che grazie ad alte prestazioni garantisce un eccellente isolamento termico, grande durata nel tempo e risparmio energetico. L’universalità di questo sistema lo rende ideale sia in ambito di edilizia privata sia commerciale e consente la realizzazione di finestre e porte di grandi dimensioni.
Il sistema PROCURAL PE78N si basa su una struttura a 3 camere, ha una profondità del telaio pari a 78 mm. La tenuta è assicurata grazie all’applicazione di speciali guarnizioni in gomma sintetica bicomponente EPDM lungo tutto il perimetro il che garantisce resistenza, durata e buon isolamento termico.
In versione HI con la chiusura della camera sotto il vetro e un innovativo inserto isolante è possibile aumentare ancora di più i parametri di isolamento termico ed efficienza energetica.
PROCURAL PE 68 | PROCURAL PE 68 HI | PROCURAL PE78 | |
|---|---|---|---|
Materiale | Aluminium | Aluminium | Aluminium |
Garanzia | 5 anni | 5 anni | 5 anni |
Dimensioni massime delle ante | 1550 x 2200mm 1200 x 2400mm 1100 x 2700mm | 1550 x 2200mm 1200 x 2400mm 1100 x 2700mm | 1550 x 2200mm 1200 x 2400mm 1100 x 2700mm |
Peso massimo dell’anta | 200 kg | 200 kg | 200 kg |
Vetri | 2 o 3 | 2 o 3 | 2 o 3 |
Numero di camere del telaio | 3 | 3 | 3 |
Numero di camere dell’anta | 3 | 3 | 3 |
Profondità del telaio | 68 mm | 68 mm | 78 mm |
Profondità dell’anta | 76 mm | 76 mm | 86 |
Spessore del riempimento del telaio | 13 – 51 mm | 13 – 51 mm | 13 – 51 mm |
Spessore del riempimento dell’anta | 13 – 59 mm | 13 – 59 mm | 13 – 59 mm |
Ricambio d’aria | classe 4 | classe 4 | classe 4 |
Uf (Coefficiente di trasmittanza termica del telaio) | da 1,8 W/m2 | da 1,4 W/m2 | da 1,7 W/m2 |
Uw (Coefficiente di trasmittanza termica in maniera complessiva) | O.93* | O.84* | O.88* |
Rc (classe di sicurezza) | RC2 | RC2 | RC2 |
Classe S
Tutti gli infissi Matplast sono testati
per resistere anche in condizioni
di clima severo.